Оборудование для очистки промышленного масла и сточных вод MEIHENG
Надёжная очистка 24/7 — меньше отходов, больше ресурса оборудования

Видео-демонстрация
Каталог оборудования

DSJ Устройство для сбора поверхностного масла (скребковый тип)
Применение:
Скребковый маслосъёмник DSJ используется для удаления/сбора различных видов масел: моторных, дизельного топлива, керосина, смазочных и пищевых масел. Широко применяется на электростанциях, в механообработке/машиностроении, при прокатке стали и алюминия, в производстве минеральных удобрений, на нефтеперерабатывающих предприятиях, нефтебазах (хранение нефти), на железнодорожном транспорте и на других предприятиях, работающих с маслами. Особенно эффективен при работе с тяжёлыми и вязкими маслами.
Особенности:
| Параметр | Ед. изм. | DSJ-20 | DSJ-30 | DSJ-50 | DSJ-80 |
|---|---|---|---|---|---|
| Ширина маслопоглощающей ленты | мм | 200 | 300 | 500 | 800 |
| Производительность по сбору масла | кг/ч | 4 | 5 | 15 | 20 |
| Степень извлечения плавающего масла | % | 98 | 98 | 98 | 98 |
| Содержание воды в конечном масле | % | ≤ 2,5 | ≤ 2,5 | ≤ 2,5 | ≤ 2,5 |
| Мощность | кВт | 0,55 | 0,75 | 1,1 | 1,1 |
| Напряжение | В | 380 | 380 | 380 | 380 |
| Высота масляного выхода (патрубка) | мм | 900 | 950 | 1100 | 1200 |
| Высота водяного выхода (патрубка) | мм | 880 | 850 | 1000 | 1100 |
| Габариты — длина L | мм | 1650 | 1680 | 1750 | 1800 |
| Габариты — ширина W | мм | 600 | 650 | 750 | 780 |
| Габариты — высота H | мм | 1750 | 1750 | 1850 | 1850 |
| Масса (нетто) | кг | 450 | 480 | 550 | 600 |
| Заказать консультацию | |||||

JFCY Коалесцентно-сепарационный модуль очистки воды от нефтепродуктов
Назначение и особенности:
Принцип работы:
Примечание:если температура окружающей среды низкая, на установку можно дополнительно установить электронагреватель для повышения температуры обрабатываемых нефтесодержащих сточных вод, чтобы обеспечить требуемую эффективность удаления масла (обезмасливания).
| Параметр | Ед. изм. | JFCY-3 | JFCY-5 | JFCY-8 | JFCY-10 | JFCY-15 | JFCY-20 |
|---|---|---|---|---|---|---|---|
| Производительность (объём обрабатываемой воды) | м³/ч | 3 | 5 | 8 | 10 | 15 | 20 |
| Кол-во фильтроэлементов | шт | 5 | 10 | 16 | 20 | 30 | 40 |
| Мощность | кВт | 1.5 | 1.5 | 2.2 | 4 | 5.5 | 7.5 |
| Остаточное содержание масла на выходе | ppm | < 50 | < 50 | < 50 | < 50 | < 50 | < 50 |
| Напряжение питания | — | 380 В, трёхфазная четырёхпроводная сеть | |||||
| Габариты — длина L | мм | 1750 | 1750 | 1750 | 1800 | 2000 | 2000 |
| Габариты — ширина W | мм | 1000 | 1200 | 1500 | 1700 | 1900 | 2000 |
| Габариты — высота H | мм | 1200 | 1500 | 1700 | 1800 | 1900 | 2000 |
| Заказать консультацию | |||||||


DYJ — многофункциональный агрегат тонкой очистки смазочных масел
Назначение:
Разработана с учётом особенностей различных типов смазок и предназначена для обработки нескольких видов масел. Широко применяется в электроэнергетике, металлургии, горнодобывающей и машиностроительной отраслях, химической промышленности, на транспорте, в производстве и пищевой промышленности и др.
Очищает: редукторные (gear) масла, гидравлические масла, холодильные (freezer) масла, компрессорные масла, масло вакуумных насосов, моторные масла (ДВС), термические/закалочные масла.
Быстро удаляет из масла твёрдые примеси, воду, газы, а также лёгкие углеводороды и кислоты методом вакуумной флэш-дегазации (вспышечного испарения); повышает качество масла и восстанавливает его эксплуатационные свойства.
Особенности:
| Параметр | Ед. изм. | DYJ-10 | DYJ-20 | DYJ-30 | DYJ-50 | DYJ-100 | DYJ-150 | DYJ-200 | DYJ-300 |
|---|---|---|---|---|---|---|---|---|---|
| Расход (производительность по маслу) | л/мин | 10 | 20 | 30 | 50 | 100 | 150 | 200 | 300 |
| Диапазон рабочего вакуума | МПа | -0.06 ~ -0.095 | |||||||
| Рабочее давление | МПа | ≤ 0.5 | |||||||
| Рабочая температура | °C | 30 ~ 90 | |||||||
| Уровень шума | dB(A) | 65 | 68 | 68 | 70 | 75 | 78 | 80 | 85 |
| Мощность нагрева | кВт | 18 | 24 | 30 | 36 | 60 | 90 | 120 | 150 |
| Общая установленная мощность | кВт | 20 | 26 | 32 | 39 | 64 | 98 | 128 | 160 |
| Диаметр патрубков (вх./вых.) | мм | Φ25 | Φ32 | Φ42 | Φ42 | Φ42 | Φ48 | Φ60 | Φ76 |
| Масса (нетто) | кг | 320 | 500 | 550 | 650 | 1050 | 1150 | 1450 | 2100 |
| Габариты — длина L | мм | 1000 | 1100 | 1300 | 1450 | 1500 | 1500 | 1550 | 1600 |
| Габариты — ширина W | мм | 800 | 900 | 1000 | 1100 | 1200 | 1250 | 1250 | 1300 |
| Габариты — высота H | мм | 1500 | 1600 | 1700 | 1800 | 1850 | 1900 | 1950 | 2000 |
| Заказать консультацию | |||||||||
| Показатель | Значение после обработки |
|---|---|
| Содержание воды | ≤ 100 ppm |
| Демульгирующая способность (время разрушения эмульсии) | ≤ 15 мин (GB/T 7605) |
| Класс чистоты | ≤ 6 класс (NAS 1638) |
| Механические примеси, % | отсутствуют (GB/T 511) |
| Температура вспышки, °C | по GB/T 3536 |


FLUC — тележка для фильтрации и перекачки масла
Назначение:
Широко применяется на электростанциях и подстанциях, нефтебазах, на предприятиях промышленности и горнодобычи для механической фильтрации и перекачки следующих масел: трансформаторное, турбинное, гидравлическое, компрессорное, холодильное (для хладоагрегатов), масло вакуумных насосов, моторные масла (бензиновые/дизельные), а также другие низковязкие смазочные масла.
Особенности:
| Параметр | Ед. изм. | FLUC-50 | FLUC-80 | FLUC-100 | FLUC-150 | FLUC-200 |
|---|---|---|---|---|---|---|
| Максимальный расход | л/мин | 50 | 80 | 100 | 150 | 200 |
| Мощность электродвигателя | кВт | 0.75 | 1.1 | 2.2 | 3 | 4 |
| Рабочее давление | МПа | ≤ 0.5 | ||||
| Тонкость фильтрации | мкм | 5–15 (возможна настройка под заказчика) | ||||
| Напор (высота подъёма) | м | 15 | ||||
| Высота всасывания | м | 5 | ||||
| Электропитание | — | 380 В, 50 Гц, трёхфазная четырёхпроводная сеть | ||||
| Диаметр патрубков (вход/выход) | мм | Φ25 | Φ32 | Φ42 | Φ48 | Φ48 |
| Масса (нетто) | кг | 50 | 70 | 85 | 105 | 115 |
| Габариты — длина L | мм | 500 | 550 | 580 | 600 | 650 |
| Габариты — ширина W | мм | 320 | 350 | 400 | 450 | 450 |
| Габариты — высота H | мм | 700 | 750 | 800 | 800 | 850 |
| Заказать консультацию | ||||||

GDL — установка точной фильтрации и заправки масла.
Назначение:
Широко применяется в отраслях транспорта, машиностроения, электроэнергетики, нефтехимии и металлургии. Предназначена для глубокой фильтрации (после предварительного подогрева) различных смазочных масел: **изоляционного/трансформаторного**, редукторного, машинного, гидравлического, компрессорного, холодильного (для хладоагрегатов) и веретённого.
Особенности:
| Параметр | Ед. изм. | GDL-30 | GDL-50 | GDL-80 | GDL-100 | GDL-150 | GDL-200 | GDL-300 | GDL-400 |
|---|---|---|---|---|---|---|---|---|---|
| Расход | л/мин | 30 | 50 | 80 | 100 | 150 | 200 | 300 | 400 |
| Мощность нагрева | кВт | 15 | 18 | 24 | 27 | 30 | 36 | 54 | 60 |
| Общая установленная мощность | кВт | 16 | 20 | 26 | 30 | 33 | 40 | 60 | 66 |
| Рабочая температура | °C | 30–90 | |||||||
| Рабочее давление | МПа | ≤ 0.5 | |||||||
| Тонкость фильтрации | мкм | ≤ 3–15 | |||||||
| Диаметр патрубков (вх./вых.) | мм | Φ25 | Φ32 | Φ32 | Φ42 | Φ48 | Φ48 | Φ60 | Φ76 |
| Заказать консультацию | |||||||||

ZK — установка вакуумной откачки
Назначение
Рабочий диапазон вакуума:133…7 Па, предельное (лучшее) давление — ≈7 Па. Установка быстро запускается и обладает высокой производительностью. Применяется при вакуумной плавке, сварке, в фармацевтике, вакуумной технике, особенно — для работ с трансформаторами в вакууме.
Схема:основной насос — рутс-насос (lobe-type), предвакуумный — пластинчато-роторный. Между ними установлен электромагнитный клапан дифференциального давления. Пуск агрегата осуществляется с запуска предвакуумного насоса. Микровакуумный манометр и запорная арматура — импортного производства; манометр служит для контроля уровня вакуума и управления рутс-насосом. Клапан обеспечивает герметичность системы. Циркуляционный фильтр и водяное охлаждение гарантируют безопасную работу; циркулирующая вода стабилизирует температуру.
Особенности
| № | Модель | Основной насос | Предвакуумный насос | Скорость откачки, L/s | Предельный вакуум, Па | |
|---|---|---|---|---|---|---|
| 1 | ZK-70 | RTO/W.70S или ZJ-70 | 2X-8 | 70 | 5 × 10⁻² | |
| 2 | ZK-150 | RTO/W.150S или ZJP-150B | 2X-30A | 150 | 5 × 10⁻² | |
| 3 | ZK-300 | RTO/W.300S или ZJP-300B | 2X-70A | 300 | 5 × 10⁻² | |
| 4 | ZK-600 | RTO/W.600S или ZJP-600B | 2 × 2X-70A или H-150 | 600 | 5 × 10⁻² | |
| 5 | ZK-1200 | RTO.1200S или ZJP-1200B | 2 × 70A + RTO/W.300S | 1200 | 5 × 10⁻² | |
| Заказать консультацию | ||||||


GL — переносная установка фильтрации и заправки масла
Назначение
Широко применяется на электростанциях/подстанциях, нефтебазах, а также на промышленных и горнодобывающих предприятиях для механической фильтрации следующих масел: машинного, гидравлического, компрессорного, турбинного, изоляционного, бензинового и дизельного моторного и др. низковязких смазочных масел. Для нужд пищевых масел предусмотрена линейка изделий из нержавеющей стали. По требованию может комплектоваться — маслозаливочным пистолетом-дозатором (счётчиком) для точного учёта при заправке и откачке.
Особенности
| Модель | Расход, л/мин | Напор, м | Всасывание, м | Фильтрация, мкм | Мощность, кВт | Габариты Д×Ш×В, мм |
|---|---|---|---|---|---|---|
| GL-32I | 32 | 15 | 5 | 5–15 | 0.55 | 650×500×520 |
| GL-32 | 32 | 15 | 5 | 5–15 | 0.55 | 800×320×750 |
| GL-50I | 50 | 15 | 5 | 5–15 | 0.75 | 650×500×520 |
| GL-50II | 50 | 15 | 5 | 5–15 | 0.75 | 800×320×750 |
| GL-80I | 80 | 15 | 5 | 5–15 | 1.1 | 750×600×650 |
| GL-80II | 80 | 15 | 5 | 5–15 | 1.1 | 800×320×750 |
| GL-100I | 100 | 15 | 5 | 5–15 | 1.1 | 750×600×650 |
| GL-100II | 100 | 15 | 5 | 5–15 | 1.1 | 900×400×800 |
| GL-150I | 150 | 15 | 5 | 5–15 | 7.5 | 800×650×700 |
| GL-150II | 150 | 15 | 5 | 5–15 | 7.5 | 900×400×800 |
| GL-200I | 200 | 15 | 5 | 5–15 | 2.2 | 750×680×720 |
| GL-200II | 200 | 15 | 5 | 5–15 | 2.2 | 900×430×700 |
| GL-250I | 250 | 15 | 5 | 5–15 | 2.2 | 780×680×720 |
| GL-250II | 250 | 15 | 5 | 5–15 | 2.2 | 900×700×750 |
| GL-300I | 300 | 15 | 5 | 5–15 | 3 | 800×700×720 |
| GL-300II | 300 | 15 | 5 | 5–15 | 3 | 920×720×750 |
| Заказать консультацию | ||||||
| Показатель | Ед. изм. | Значение после обработки |
|---|---|---|
| Пробивное напряжение | кВ | ≥ 60 |
| Содержание воды | ppm | ≤ 5 |
| Содержание газа | % | ≤ 0,2 |
| Содержание механических частиц | мкм | ≤ 5 (без свободного углерода) |
| Температура вспышки (открытый тигель) | °C | по GB 443-89 |
| Водорастворимые кислоты (pH) | — | pH ≥ 5,4 |
| Кислотное число | мг KOH/г | ≤ 0,03 |
| tg δ при 90 °C | — | ≤ 0,003 |


LK — фильтровальная установка для фосфатно-эфирного огнестойкого масла (EHC)
Назначение
Предназначена для регенерации и очистки огнестойких фосфатно-эфирных гидрожидкостей (EHC) в системах регулирования турбин/генераторов, особенно на энергоблоках средней и большой мощности (≈≥300 МВт). С учётом свойств фосфатных эфиров узлы выполнены из нержавеющей стали и специальных уплотнительных материалов, что обеспечивает совместимость, герметичность и коррозионную стойкость. Установка работает онлайн при пониженной температуре, использует исключительно физические методы очистки, не вызывает вторичного загрязнения и не наносит дополнительного ущерба рабочей жидкости; управление — автоматическое.
Особенности
| Параметр | Ед. изм. | LK-20 | LK-30 | LK-50 | LK-80 | LK-100 | LK-150 | LK-200 |
|---|---|---|---|---|---|---|---|---|
| Расход | л/мин | 20 | 30 | 50 | 80 | 100 | 150 | 200 |
| Общая установленная мощность | кВт | 15 | 18 | 27 | 33 | 36 | 56 | 68 |
| Мощность нагрева | кВт | 17 | 23 | 30 | 35 | 42 | 56 | 68 |
| Рабочая температура | °C | 30–90 | ||||||
| Диапазон рабочего вакуума | МПа | −0.06 ~ −0.095 | ||||||
| Рабочее давление | МПа | ≤ 0.5 | ||||||
| Диаметр патрубков (вх./вых.) | мм | Φ25 | Φ32 | Φ32 | Φ42 | Φ42 | Φ48 | Φ48 |
| Масса (нетто) | кг | 250 | 350 | 500 | 700 | 900 | 1100 | 1400 |
| Заказать консультацию | ||||||||
| Показатель | Значение после обработки |
|---|---|
| Класс чистоты по частицам | ≤ NAS 6 (NAS 1638) |
| Содержание воды | ≤ 50 ppm (GB/T 7600) |
| Кислотное число | ≤ 0,05 мг KOH/г (GB/T 264) |
| Содержание хлора | ≤ 50 ppm (DL/T 433) |
| Удельное электрическое сопротивление | > 6 × 109(DL/T 421) |



HX — термический шкаф для сушки и выдержки.
Особенности
| Модель | Напряжение | Вентилятор, кВт | Нагрев, кВт | Общая мощность, кВт | Макс. температура | Точность | Габариты Д×Ш×В, мм |
|---|---|---|---|---|---|---|---|
| DX-0.8 | AC 220V | — | 0.8 | 0.8 | 300 °C | ±2 °C | 750×550×1000 |
| DX-1.0 | AC 220V | — | 1.0 | 1.0 | 300 °C | ±2 °C | 800×580×1050 |
| DX-1.2 | AC 220V | — | 1.2 | 1.2 | 300 °C | ±2 °C | 850×600×1100 |
| DX-1.5 | AC 220V | — | 1.5 | 1.5 | 300 °C | ±2 °C | 900×600×1100 |
| DX-2.0 | AC 220V | 0.04 | 2.0 | 2.04 | 300 °C | ±2 °C | 1000×650×1350 |
| DX-3.0 | AC 220V | 0.04 | 3.0 | 3.04 | 300 °C | ±2 °C | 1100×700×1350 |
| DX-4.5 | AC 220V | 0.04 | 4.5 | 4.54 | 300 °C | ±2 °C | 1200×850×1580 |
| DX-6.0 | AC 380V | 0.18 | 6.0 | 6.18 | 300 °C | ±2 °C | 1350×950×1580 |
| DX-9.0 | AC 380V | 0.18 | 9.0 | 9.18 | 300 °C | ±2 °C | 1400×1000×1580 |
| DX-12 | AC 380V | 0.18 | 12.0 | 12.18 | 300 °C | ±2 °C | 1500×1100×1780 |
| DX-15 | AC 380V | 0.18 | 15.0 | 15.18 | 300 °C | ±2 °C | 1600×1200×1780 |
| Заказать консультацию | |||||||

LXDR — дисковый центробежный сепаратор
Назначение
Тарельчатый центробежный сепаратор LXDR применяется для регенерации смазочных масел и очистки топлива, используемых на судах и на прибрежных/внутренних электростанциях. Установка быстро отделяет воду и механические примеси от масла, продлевая срок службы оборудования и обеспечивая его нормальную работу.
Принцип работы
Зона разделения
Внутри барабана установлена пакетная тарелочная (дисковая) колонка: набор разделительных дисков разбивает поток на множество тонких слоёв, резко сокращая путь оседания и повышая степень разделения. Любые частицы, попавшие в междисковое пространство, по мере движения достигают поверхности диска и выводятся из потока (осаждаются в отстойной зоне).
| Параметр | Ед. изм. | Значение | |
|---|---|---|---|
| Номинальная производительность | л/ч | 800, 1500, 2000, 3000, 4000, 5000, 10000, 15000 | |
| Скорость вращения барабана | об/мин | 8100 | |
| Скорость счётного/приводного узла | об/мин | 79–83 | |
| Способ выгрузки осадка | — | ручной или автоматический | |
| Давление на всасывании насоса «грязного» масла | МПа | ≥ 0,04 | |
| Давление на выходе насоса «чистого» масла | МПа | ≥ 0,2 | |
| Рабочая температура масла | °C | 20–80 | |
| Заказать консультацию | |||


QZY Установка непрерывной (онлайн) очистки турбинного масла
Назначение
Турбинное масло выполняет функции смазки, отвода тепла, охлаждения и регулирования скорости. Его ухудшение напрямую влияет на работу и ресурс турбинного агрегата. QZY разработана для турбогенераторов и предназначена для непрерывной онлайн-очистки масла даже при постоянном подтоке воды и посторонних примесей (через уплотнения и внешние контуры). Очищенное масло соответствует требованиям эксплуатации, что обеспечивает безопасную работу и продлевает срок службы оборудования.
Как подключается/работает
Установка QZY подключается параллельно системе турбинного масла (байпасный контур). Масло из основного маслобака подаётся в блок очистки и после обработки возвращается в главный резервуар.
Применяются:
Удаляются вода, механические примеси, шлам, коллоиды, а также следы кислот, щёлочей и мыл. QZY может работать одновременно с основной системой либо как автономная станция — высокая эффективность сохранена в обоих режимах.
Доступны исполнения под требования объекта (в т.ч. взрывозащищённое).
| Параметр | Ед. изм. | QZY-50 | QZY-100 | QZY-150 | QZY-200 | QZY-250 | QZY-300 | QZY-400 | QZY-500 |
|---|---|---|---|---|---|---|---|---|---|
| Расход | л/мин | 50 | 100 | 150 | 200 | 250 | 300 | 400 | 500 |
| Диапазон рабочего вакуума | МПа | −0.06 ~ −0.095 | |||||||
| Рабочее давление | МПа | ≤ 0.5 | |||||||
| Рабочая температура | °C | 20–100 | |||||||
| Мощность нагрева | кВт | 30 | 60 | 90 | 120 | 150 | 180 | 210 | 240 |
| Общая установленная мощность | кВт | 33 | 65 | 98 | 132 | 165 | 198 | 232 | 258 |
| Диаметр патрубков (вх./вых.) | мм | Φ32 | Φ42 | Φ48 | Φ60 | Φ60 | Φ76 | Φ89 | Φ108 |
| Масса (нетто) | кг | 650 | 1050 | 1450 | 1850 | 2250 | 2800 | 3300 | 3800 |
| Заказать консультацию | |||||||||
| Показатель | Значение после обработки |
|---|---|
| Класс чистоты по частицам | ≤ 6 класс (NAS 1638) |
| Содержание воды | ≤ 80 ppm |
| Демульгирующая способность (время разрушения эмульсии) | ≤ 15 мин (GB/T 7605) |
| Температура вспышки (открытый тигель) | > 175 °C (GB/T 3536) |
| Испытание на коррозию/ржавление в жидкой фазе | по GB/T 3536 |


LXTL — вакуумно-центробежная установка очистки турбинного масла
Назначение
Предназначена для обработки турбинного масла. С одной стороны, установка быстро отделяет большие количества свободной воды и механических примесей без частой замены фильтроэлементов; с другой — удаляет остаточные капли воды, твёрдые частицы, газы и растворимые кислоты, восстанавливая смазывающие свойства масла и обеспечивая безопасную и стабильную работу турбины.
Принцип работы
содержание воды снижается до ≈0,5%,
твёрдых примесей до ≈0,1%.
Отделившаяся вода отводится автоматически, осадок накапливается на стенках барабана и периодически удаляется.
| Параметр | Ед. изм. | LXTL-1.5 | LXTL-2 | LXTL-3.5 | LXTL-5 |
|---|---|---|---|---|---|
| Производительность (расход) | м³/ч | 1.5 | 2 | 3.5 | 5 |
| Диапазон рабочего вакуума | МПа | −0.06 ~ −0.095 | |||
| Рабочее давление | МПа | ≤ 0.5 | |||
| Рабочая температура | °C | 30–80 | |||
| Мощность нагрева | кВт | 18 | 24 | 36 | 48 |
| Общая установленная мощность | кВт | 23 | 31 | 45 | 60 |
| Диаметр патрубков (вх./вых.) | мм | Φ32 | Φ32 | Φ38 | Φ42 |
| Масса (нетто) | кг | 730 | 850 | 1150 | 1650 |
| Габариты — длина L | мм | 1550 | 1650 | 1700 | 1750 |
| Габариты — ширина W | мм | 1200 | 1250 | 1300 | 1350 |
| Габариты — высота H | мм | 1600 | 1700 | 1700 | 1700 |
| Заказать консультацию | |||||
| Показатель | Значение после обработки |
|---|---|
| Класс чистоты по частицам | ≤ 6 класс (NAS 1638) |
| Содержание воды | ≤ 80 ppm |
| Демульгирующая способность (время разрушения эмульсии) | ≤ 15 мин (GB/T 7605) |
| Температура вспышки (открытый тигель) | > 172 °C (GB/T 3536) |
| Испытание на коррозию в жидкой фазе | по GB/T 3536 |

LY — напорная пластинчато-рамная установка очистки масла (фильтр-пресс).
Назначение
Предназначен для электростанций и подстанций, лубрикантных складов, предприятий промышленности и горнодобычи, нефтехимии, металлургии и оборонной отрасли. Служит для удаления воды и механических примесей из трансформаторного, турбинного, авиационного гидравлического и других видов масел. Доступно исполнение со встроенным предварительным фильтром и взрывозащитой.
Особенности
Примечания по применению
| Параметр | Ед. изм. | LY-30 | LY-50 | LY-100 | LY-120 | LY-150 | LY-200 | LY-300 |
|---|---|---|---|---|---|---|---|---|
| Производительность фильтрации | л/мин | 30 | 50 | 100 | 120 | 150 | 200 | 300 |
| Площадь фильтрации | м² | 0.3 | 0.7 | 1.3 | 1.54 | 1.89 | 2.46 | 3.18 |
| Размер фильтрокартона | мм | 200×200 | 200×200 | 295×295 | 295×295 | 295×295 | 295×295 | 295×295 |
| Количество фильтроплит | шт | 11 | 13 | 15 | 17 | 20 | 25 | 31 |
| Тонкость фильтрации | мкм | 5–10 | ||||||
| Рабочее давление | МПа | 0–0.33 | ||||||
| Заказать консультацию | ||||||||


SLG — полностью автоматический самопромывной фильтр для воды
Назначение
Автоматическая система фильтрации и самоочистки, работающая от давления самой сети — без отдельного источника промывочной воды. Многоэлементный фильтрующий блок и однокамерная усиленная обратная промывка дают большую площадь фильтрации при компактных габаритах. Фильтрация и слив промывной воды могут идти одновременно, без остановки технологической линии.
Применение:
Очистка низковязких жидкостей/воды с взвешенными примесями в нефтехимии, металлургии, пищевой и химической промышленности, машиностроении, фармацевтике, энергетике, сельском хозяйстве и орошении, ЖКХ, горной промышленности и системах водоотведения.
Особенности
| Параметр | Ед. | SLG-50 | SLG-100 | SLG-150 | SLG-200 | SLG-250 | SLG-300 | SLG-400 | SLG-500 | SLG-600 | SLG-800 |
|---|---|---|---|---|---|---|---|---|---|---|---|
| Диаметр вход/выход | мм | 50 | 100 | 150 | 200 | 250 | 300 | 400 | 500 | 600 | 800 |
| Диаметр дренажа | мм | 40 | 50 | 65 | 80 | 100 | 100 | 115 | 125 | 150 | 180 |
| Мощность редуктора | кВт | 0.18 | 0.18 | 0.37 | 0.37 | 0.55 | 0.55 | 0.75 | 1.1 | 1.5 | 1.5 |
| Рабочее давление | МПа | 1.0 или 1.6 (по требованию) | |||||||||
| Тонкость фильтрации | мм | 0.1–5 | |||||||||
| Диапазон таймера | ч | 0–30 | |||||||||
| Время авто-промывки | с | 5–10 | |||||||||
| Потеря давления | МПа | ≤ 0.006 | |||||||||
| Система управления | — | Дифференциальное давление или PLC | |||||||||
| Макс. рабочая температура | °C | 65 | |||||||||
| Заказать консультацию | |||||||||||


SPGL — фильтр с ручным сливом (продувкой) загрязнений
Конструкция и принцип работы
Состоит из корпуса из углеродистой стали, клиновидной щелевой нержавеющей сетки (wedge-wire), потоконаправляющего клапана и узла слива загрязнений.
Технические особенности
| DN (внутр. диаметр), мм | L | A | B | C | D | Дренаж, мм |
|---|---|---|---|---|---|---|
| 200 | 884 | 500 | 260 | 670 | 670 | 65 |
| 250 | 1120 | 625 | 310 | 830 | 830 | 80 |
| 300 | 1310 | 750 | 350 | 1000 | 1000 | 100 |
| 350 | 1514 | 875 | 420 | 1180 | 1180 | 125 |
| 400 | 1730 | 1000 | 470 | 1350 | 1350 | 150 |
| 450 | 1886 | 1125 | 510 | 1500 | 1500 | 150 |
| 500 | 2080 | 1250 | 550 | 1680 | 1680 | 150 |
| 600 | 2490 | 1500 | 650 | 2000 | 2000 | 200 |
| 700 | 2680 | 1600 | 680 | 2150 | 2150 | 200 |
| 800 | 2880 | 1750 | 700 | 2300 | 2300 | 200 |
| 900 | 3150 | 1850 | 800 | 2480 | 2480 | 200 |
| 1000 | 3370 | 2000 | 900 | 2675 | 2675 | 250 |
| 1100 | 3610 | 2100 | 1000 | 2900 | 2900 | 250 |
| 1200 | 3850 | 2250 | 1100 | 3050 | 3050 | 250 |
| 1500 | 4700 | 2800 | 1200 | 3800 | 3800 | 250 |
| Заказать консультацию | ||||||


TL — установка очистки турбинного масла
Назначение
Комбинирует отстой, вакуумное разделение, адсорбцию/коалесценцию и многоступенчатую тонкую фильтрацию. Эффективно выполняет разрушение эмульсии, обезвоживание, дегазацию и удаление твёрдых частиц, коллоидов, кислот и мыл. Применяется на электростанциях, в химпроме, целлюлозно-бумажной и металлургической отрасли и др.
Особенности
| Параметр | Ед. изм. | TL-10 | TL-20 | TL-30 | TL-50 | TL-80 | TL-100 | TL-150 | TL-200 | TL-300 | TL-500 |
|---|---|---|---|---|---|---|---|---|---|---|---|
| Расход | л/мин | 10 | 20 | 30 | 50 | 80 | 100 | 150 | 200 | 300 | 500 |
| Диапазон рабочего вакуума | МПа | −0.06 ~ −0.095 | |||||||||
| Рабочее давление | МПа | ≤ 0.5 | |||||||||
| Рабочая температура | °C | 30–80 | |||||||||
| Мощность нагрева | кВт | 18 | 24 | 30 | 36 | 48 | 60 | 81 | 97 | 132 | 168 |
| Общая установленная мощность | кВт | 20 | 26 | 33 | 39 | 50 | 62 | 83 | 99 | 134 | 170 |
| Диаметр патрубков (вх./вых.) | мм | Φ25 | Φ32 | Φ32 | Φ42 | Φ42 | Φ48 | Φ60 | Φ76 | Φ89 | Φ108 |
| Масса (нетто) | кг | 350 | 380 | 450 | 530 | 650 | 850 | 1050 | 1350 | 1800 | 2200 |
| Габариты L×W×H | мм | 1300×600×1500 | 1300×700×1600 | 1500×700×1700 | 1600×800×1700 | 1700×950×1750 | 1800×1050×1850 | 1900×1150×1950 | 1950×1250×1950 | 2050×1450×1980 | 2150×1650×2100 |
| Заказать консультацию | |||||||||||
| Показатель | Значение после обработки |
|---|---|
| Класс чистоты по частицам | ≤ 6 класс (NAS 1638) |
| Содержание воды | ≤ 80 ppm |
| Демульгирующая способность (время разрушения эмульсии) | ≤ 15 мин (GB/T 7605) |
| Температура вспышки (открытый тигель) | > 172 °C (GB/T 3536) |
| Испытание на коррозию в жидкой фазе | по GB/T 3536 |
| Механические примеси | отсутствуют (GB/T 511) |


XYZ-G — станция циркуляционной смазки «тонким» маслом
Применение
Станция для систем циркуляционной смазки паровых турбин, прокатных станов и др. механизмов на маловязких маслаx: ISO VG 22…460 (N22–N460) / марки 20#–25# и «rolling-mill oil».
Номинальное давление подачи: 0,40 MPa (допустимо до ≤0,6 MPa).
Точность фильтрации: 0,08–0,12 мм.
Охлаждающая вода: 0,2–0,3 MPa, t воды ≤30 °C.
Входная температура масла на теплообменник: ≈50 °C (ниже на 7–8 °C с паровым подогревом); давление пара 0,2–0,4 MPa.
Конструктивные особенности
Общие параметры (для всех моделей)
| Допустимое давление подачи | ≤ 0.6 MPa |
| Температура подаваемого масла | 40 ± 3 °C |
| Точность фильтрации | 0.08–0.12 мм |
| Давление охлаждающей воды | 0.2–0.3 MPa |
| Температура охлаждающей воды | ≤ 30 °C |
| Входная t масла на теплообменник | ≈ 50 °C |
| Параметр | Ед. | XYZ-6G | XYZ-10G | XYZ-16G | XYZ-25G | XYZ-40G | XYZ-63G | XYZ-100G | XYZ-125G | XYZ-250G | XYZ-400G | XYZ-630G | XYZ-1000G |
|---|---|---|---|---|---|---|---|---|---|---|---|---|---|
| Номинальный расход | л/мин | 6 | 10 | 16 | 25 | 40 | 63 | 100 | 125 | 250 | 400 | 630 | 1000 |
| Давление подачи (доп.) | MPa | ≤ 0.6 | |||||||||||
| Температура масла на подаче | °C | 40 ± 3 | |||||||||||
| Объём маслобака | м³ | 0.15 | 0.63 | 1 | 1.6 | 6.3 | 10 | 16 | 25 | — | — | — | — |
| Площадь фильтрации | м² | 0.05 | 0.13 | 0.19 | 0.40 | 0.52 | 0.83 | 1.31 | 2.20 | — | — | — | — |
| Точность фильтрации | мм | 0.08–0.12 | |||||||||||
| Площадь теплообменника | м² | 0.6 | 1 | 3 | 4 | 6 | 24 | 35 | 50 | 80 | — | — | — |
| Расход охлажд. воды | м³/ч | 0.36 | 0.6 | 1 | 1.5 | 3.6 | 5.7 | 9 | 11.25 | 12–22.5 | 20–36 | 30–56 | 60–90 |
| Электроподогрев, мощность | кВт | 2 | 6 | 9(12) | 12(24) | 24 | 36 | 45 | 54 | — | — | — | — |
| Напряжение | В | 220 (380) | 220 или 380 | ||||||||||
| Электродвигатель (тип) | — | A02-8014-B14 | Y90S-4-V1 | Y100L1-4-V1 | Y112M-4-V1 | Y160M-6 | Y160M-? | Y200L2-6 | Y200L-4 | — | — | — | — |
| Мощность двигателя | кВт | 0.55 | 1.1 | 2.2 | 4 | 7.5 | 11 | 18.5 | 30 | — | — | — | — |
| Частота вращения | об/мин | 1400 | 1450 | 1450 | 1430 | 1440 | 970 | 1460 | 970 | — | — | — | — |
| Масса (нетто) | кг | 308 | 309 | 628 | 629 | 840 | 842 | 1260 | 1262 | 3980 | 5418 | 8750 | 12096 |
| Заказать консультацию | |||||||||||||

YFC — интегрированная установка очистки сточных вод
Области применения
Электростанции, заводы и шахты, гостиницы, больницы, школы, военные части, жилые комплексы и т.п. — очистка бытовых и промышленных стоков.
Особенности
| Параметр | Ед. | YFC-3 | YFC-5 | YFC-7.5 | YFC-10 | YFC-15 | YFC-20 | YFC-30 | YFC-40 | YFC-50 |
|---|---|---|---|---|---|---|---|---|---|---|
| Производительность | м³/ч | 3 | 5 | 7.5 | 10 | 15 | 20 | 30 | 40 | 50 |
| Мощность воздуходувки | кВт | 0.75 | 1.5 | 2.2 | 2.2 | 4.0 | 5.5 | 7.5 | 11 | — |
| Мощность насосов | кВт | 0.25 | 0.25 | 0.4 | 0.75 | 1.1 | 1.5 | 2.0 | 3.0 | — |
| Площадь, занимаемая оборудованием | м² | 21 | 25 | 36 | 40 | 46 | 47 | 70 | 87 | 106 |
| Суммарная установленная мощность | кВт | 1.0 | 1.75 | 2.6 | 2.95 | 7.2 | 9.3 | 9.3 | 12.7 | 16.2 |
| Заказать консультацию | ||||||||||
| Показатель | На входе | После очистки |
|---|---|---|
| CODCr, мг/л | 150–400 | ≤ 60 |
| BOD5, мг/л | 120–250 | ≤ 20 |
| Взвешенные вещества (SS), мг/л | 150–400 | ≤ 20 |
| Аммоний-азот (NH3-N), мг/л | 45 | ≤ 15 |
| pH | 6–9 | 6–9 |

YJB — нагревательно-смесительный котёл для вязких масел (предочистка)
Назначение
YJB используется для подогрева и интенсивного перемешивания высоковязких масел перед их фильтрацией/очисткой. При большом содержании воды и механических примесей вязкость растёт, фильтры и маслоочистители быстро забиваются, а время обработки увеличивается. Подогрев с перемешиванием позволяет отделить основную долю свободной влаги и взвеси, после чего последующая очистка идёт быстрее и стабильнее.
Что делает установка
- при тёмном цвете — ввод обесцвечивающей глины (bleaching earth/white clay) на стадии нагрева и мешалки;
- при повышенном кислотном числе — добавление деацидифицирующего сорбента/нейтрализатора с перемешиванием для снижения КЧ;
- по необходимости — коагулянты/осадители для ускоренного выпадения загрязнений.
Выгоды для линии очистки
| Заказать консультацию |


YJF — коалесцентно-сепарационной установки очистки масла
Назначение
Установка предназначена для очистки смазочных/гидравлических масел от воды, эмульсий и механических примесей. Технология коалесценции + разделения особенно эффективна на низковязких маслах: мелкодисперсные капли воды укрупняются и отделяются без нагрева и вакуума, сохраняя физико-химические свойства масла.
Принцип работы
Внутри корпуса установлены коалесцентные и сепарационные картриджи. Поток через коалесцентные элементы вызывает слипание мелких капель воды в крупные. Далее гидрофобные/гидрофильные разделительные элементы отсекaют укрупнённую воду; свободная вода и часть эмульсии выводятся, масло возвращается в поток.
Особенности
| Параметр | Ед. | YJF-30 | YJF-50 | YJF-80 | YJF-100 | YJF-150 | YJF-200 | YJF-300 |
|---|---|---|---|---|---|---|---|---|
| Производительность | л/мин | 30 | 50 | 80 | 100 | 150 | 200 | 300 |
| Питание | — | Трёхфазное 380 В, 50 Гц | ||||||
| Установленная мощность | кВт | 0.75 | 1.1 | 2.2 | 2.2 | 5.5 | 7.5 | 15 |
| Длина (L) | мм | 1300 | 1300 | 1350 | 1400 | 1500 | 1550 | 1700 |
| Ширина (W) | мм | 850 | 900 | 950 | 1000 | 1100 | 1150 | 1400 |
| Высота (H) | мм | 1500 | 1600 | 1700 | 1700 | 1750 | 1800 | 1850 |
| Заказать консультацию | ||||||||
| Показатель | Значение после обработки |
|---|---|
| Класс по частицам | ≤ NAS 6 (DL/T 432) |
| Содержание воды | ≤ 100 ppm (GB/T 7600) |
| Демульгирующая способность | ≤ 15 мин (GB/T 7605) |
| Механические примеси | нет (GB/T 511) |


ZL — высокоэффективный вакуумный маслоочиститель
Назначение
Специализированная установка для очистки электроизоляционных масел (подстанции, шахты, электрические цеха и т.д.). Быстро удаляет воду, газы и механические примеси, повышая пробивное напряжение и изоляционные свойства масла. Может работать онлайн на трансформаторе; возможна вакуумная дегазация/обезвоживание с подогревом.
Особенности
| Параметр | Ед. | ZL-10 | ZL-20 | ZL-30 | ZL-50 | ZL-100 | ZL-150 | ZL-200 | ZL-300 | ZL-500 |
|---|---|---|---|---|---|---|---|---|---|---|
| Производительность | л/мин | 10 | 20 | 30 | 50 | 100 | 150 | 200 | 300 | 500 |
| Диапазон вакуума | MPa | −0.06…−0.095 | ||||||||
| Рабочее давление | MPa | ≤ 0.5 | ||||||||
| Рабочая температура | °C | 30–80 | ||||||||
| Уровень шума | dB(A) | 61 | 63 | 65 | 70 | 75 | 78 | 80 | 85 | 90 |
| Мощность нагрева | кВт | 15 | 18 | 24 | 36 | 60 | 81 | 90 | 120 | 150 |
| Установленная мощность | кВт | 18 | 21 | 27 | 39 | 65 | 86 | 98 | 132 | 168 |
| Диаметр вход/выход | мм | Φ25 | Φ32 | Φ32 | Φ32 | Φ42 | Φ48 | Φ60 | Φ76 | Φ108 |
| Масса (нетто) | кг | 150 | 200 | 260 | 300 | 500 | 700 | 900 | 1100 | 2000 |
| Длина (L) | мм | 1050 | 1100 | 1150 | 1200 | 1600 | 1600 | 1800 | 1900 | 2200 |
| Ширина (W) | мм | 700 | 850 | 900 | 950 | 1000 | 1100 | 1200 | 1200 | 1450 |
| Высота (H) | мм | 1300 | 1400 | 1450 | 1500 | 1700 | 1800 | 1850 | 1900 | 2000 |
| Заказать консультацию | ||||||||||
| Показатель | Ед. | После обработки |
|---|---|---|
| Класс по частицам | ≤ 6 класс NAS 1638 | |
| Содержание воды | ppm | ≤ 3–5 |
| Содержание растворённых газов | % | ≤ 0.2 |
| Температура вспышки (откр.) | °C | > >135 |
| Пробивное напряжение | kV | ≥ 60 |
| Размер мех. частиц | µm | ≤ 3–5 |


ZLA — двухступенчатая высокоэффективная вакуумная установка очистки изоляционного масла
Назначение / область применения
Применяется для глубокой очистки разных типов изоляционных масел (трансформаторное, кабельное и т.д.), особенно: высоковольтное масло (110 кВ и выше), высококачественные импортные масла и новые масла высокой категории.
В сравнении с обычными вакуумными маслочистками серии ZL, установка ZLAдополнительно оснащена: рутс-бустерным вакуумным насосом (Roots Vacuum Pressurization System) и вторым каскадом высоковакуумного разделения.Это даёт более глубокое обезвоживание и дегазацию.
Может использоваться прямо «в линии», на месте эксплуатации, для обслуживания оборудования 110 кВ+, для сушки намокших обмоток и заполнения масла в силовые трансформаторы под вакуумом — особенно актуально в холодных регионах.
Ключевые особенности
| Параметр | Ед. изм. | ZLA-30 | ZLA-50 | ZLA-80 | ZLA-100 | ZLA-150 | ZLA-200 | ZLA-300 |
|---|---|---|---|---|---|---|---|---|
| Производительность (расход) | л/мин | 30 | 50 | 80 | 100 | 150 | 200 | 300 |
| Диапазон рабочего вакуума | МПа | −0.07 ~ −0.099 | ||||||
| Рабочее давление | МПа | ≤ 0.5 | ||||||
| Рабочая температура | °C | 30 ~ 80 | ||||||
| Уровень шума | dB(A) | 60 | 65 | 70 | 75 | 78 | 80 | 85 |
| Мощность нагрева | кВт | 30 | 36 | 48 | 60 | 81 | 90 | 120 |
| Общая установленная мощность | кВт | 32 | 40 | 52 | 66 | 90 | 102 | 133 |
| Диаметр патрубков (вход / выход) | мм | Φ32 | Φ32 | Φ42 | Φ42 | Φ48 | Φ60 | Φ76 |
| Масса (нетто) | кг | 650 | 850 | 900 | 1200 | 1400 | 1800 | 2000 |
| Габарит L | мм | 1200 | 1250 | 1500 | 1600 | 1700 | 1750 | 1800 |
| Габарит W | мм | 920 | 950 | 1100 | 1150 | 1200 | 1250 | 1300 |
| Габарит H | мм | 1450 | 1500 | 1700 | 1800 | 1800 | 1900 | 2000 |
| Заказать консультацию | ||||||||
| Показатель | Ед. | После очистки |
|---|---|---|
| Пробивное напряжение | кВ | ≥ 75 |
| Содержание воды | ppm | ≤ 3 |
| Содержание растворённых газов | % | ≤ 0.1 |
| Содержание механических частиц | мкм | ≤ 3, без свободного углерода |
| Температура вспышки (закрытый тигель) | °C | ≥ 135 |


Станция дозирования реагентов — Complete Dosing Facilities For Water Treatment
Область применения
Готовый модуль для приготовления, хранения и точной подачи химреагентов в контуры водоподготовки и очистки стоков. Применяется на ТЭЦ и электрических станциях, в нефтегазе, нефтехимии, химической промышленности, на установках водоподготовки и водоотведения.
Поддерживает различные технологические задачи: коагулянт, фосфатирование/фосфат, аммиачная вода, известковое молоко, ингибитор коррозии, деаэраторные реагенты, корректоры pH, био-/дезреагенты и пр.
Как работает
Станция включает ёмкость приготовления (со смесителем), ёмкость хранения рабочего раствора, дозирующие насосы, контрольно-измерительные приборы (уровень, давление, расход), трубопроводную обвязку с арматурой, систему фильтрации и шкаф автоматики/PLC.
Реагент сначала готовится до нужной концентрации в смесительной ёмкости, затем перекачивается в расходную ёмкость. Оттуда измерительный (дозирующий) насос подаёт раствор строго в заданную точку (трубопровод, бак, узел коррекции pH и т.д.) с контролируемой производительностью.
Конструкция блочно-модульная (skid): компактная, безопасная, удобная в обслуживании. Под конкретные требования клиента ставятся только нужные узлы — экономично и не требует сложной реконструкции цеха.
Преимущества
| Заказать консультацию |

Система "один бак — один насос"




| Модель основания | Объём бака раствора | L | B | B2 | H | L1 | B1 | H1 | H2 | D1 | D2 |
|---|---|---|---|---|---|---|---|---|---|---|---|
| J2 | 1 | 2200 | 1100 | 1350 | 3300 | 1500 | 1000 | 170 | 900 | DN25 | DN15 |
| J-Z | 1 | 2200 | 1100 | 1350 | 3300 | 1500 | 1000 | 170 | 900 | DN25 | DN20 |
| J-D | 1 | 2200 | 1100 | 1350 | 3300 | 1500 | 1000 | 170 | 900 | DN25 | DN20 |
| Заказать консультацию | |||||||||||

Система "один бак — два насоса"




| Модель основания | Объём бака раствора | L | B | B2 | H | L1 | B1 | H1 | H2 | D1 | D2 |
|---|---|---|---|---|---|---|---|---|---|---|---|
| J2 | 1 | 3000 | 1300 | 1650 | 3300 | 2400 | 1300 | 170 | 1400 | DN50 | DN15 |
| J-Z | 1 | 3100 | 1300 | 1650 | 3300 | 2400 | 1300 | 170 | 1400 | DN50 | DN20 |
| J-D | 1 | 3200 | 1300 | 1650 | 3300 | 2400 | 1300 | 170 | 1400 | DN50 | DN20 |
| Заказать консультацию | |||||||||||

Система "два бака — три насоса"




| Модель основания | Объём бака раствора | L | B | B2 | H | L1 | B1 | H1 | H2 | D1 | D2 |
|---|---|---|---|---|---|---|---|---|---|---|---|
| J2 | 1 | 3000 | 2400 | 2750 | 3400 | 2400 | 1300 | 270 | 1800 | DN50 | DN15 |
| J-Z | 1 | 3100 | 2400 | 2750 | 3400 | 2400 | 1300 | 270 | 1800 | DN50 | DN20 |
| J-D | 1 | 3200 | 2400 | 2750 | 3400 | 2400 | 1300 | 270 | 1800 | DN50 | DN20 |
| Заказать консультацию | |||||||||||

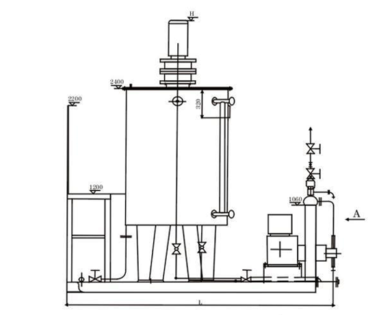
ZLS — высокотемпературная вакуумная установка перегонки отработанного масла
Назначение:
Установка предназначена для регенерации и переработки отработанных масел: моторного масла, смазочного масла, гидравлического масла, редукторного (gear oil), дизельного топлива, смешанных масляных фракций и т.д. Оборудование переводит отработанное масло в базовое масло (base oil) за счёт высокотемпературной вакуумной перегонки.
Рабочий диапазон температур: 80–320 °C. При такой температуре происходит разрушение углеродных и кислородсодержащих молекулярных цепочек загрязнений; молекулы масла перестраиваются, образуя фракции базового масла.
Во время дистилляции жидкое масло превращается в туман (масляный пар), далее пары конденсируются обратно в жидкость. Параллельно осуществляется десульфуризация и отбеливание (обесцвечивание) в отдельной ёмкости — это позволяет эффективно удалить:
В результате получается очищенное базовое масло с приемлемой кислотностью, низким содержанием воды, без механических включений и с нормализованным цветом.
Гибкость процесса:
В готовый продукт можно дозировать присадки, чтобы получить различные марки масел под нужные спецификации (смазочные, гидравлические и т.д.) либо можно выпускать фракцию, пригодную как топливо. Это делает установку подходящей для небольших НПЗ, ремонтных и сервисных компаний, которым необходимо утилизировать/перерабатывать свои отработанные масла.
Экология и экономичность:
Итог: ZLS превращает отработанное масло в ценное базовое масло, снижая объём отходов и повышая рентабельность переработки.
| Параметр | Ед. | ZLS-1T | ZLS-2T | ZLS-3T | ZLS-4T | ZLS-5T | ZLS-10T | ZLS-20T | ZLS-30T | ||
|---|---|---|---|---|---|---|---|---|---|---|---|
| Производительность обработки | т/сут | 1 | 2 | 3 | 4 | 5 | 10 | 20 | 30 | ||
| Коэффициент выхода (восстановления) | % | 86 | 86 | 86 | 86 | 86 | 86 | 86 | 86 | ||
| Рабочее давление | МПа | −0.09 МПа (вакуумная/пониженное давление дистилляция) | |||||||||
| Рабочая температура | °C | 0–350 °C | |||||||||
| Уровень шума | dB | 60 | |||||||||
| Питание | В | По требованию заказчика (напряжение можно выбрать) | |||||||||
| Метод нагрева | — | Дизельная или газовая горелка, либо электрический нагрев (по опции) | |||||||||
| Установленная мощность | кВт | 28 | 40 | 50 | 60 | 60 | 60 | 80 | 100 | ||
| Масса (нетто) | т | 1~2 | 3~5 | 4~5 | 5~6 | 8~10 | 10~15 | 18~22 | 24~26 | ||
| Площадь размещения | м² | 20~30 | 25~35 | 50~60 | 60~80 | 80~100 | 100~150 | 150~200 | 200~300 | ||
| Заказать консультацию | |||||||||||
Готовы подобрать оптимальное фрезерное решение?
Наши специалисты помогут выбрать фрезерный станок, идеально подходящий для ваших задач
